
Tyree能源技術大樓位于新南威爾士大學主校區入口處,這里是校園大道與安扎克大道的交匯處。

該建筑地理位置具有重要的戰略意義,位于三個相互連接的城市區域的交叉口,每個區域都有獨特的景觀與建筑特征,它們與建筑形式交織重疊,通過差異化的形式、尺度和細節復雜性進行回應。建筑的每個立面都不同,并通過環境響應來展現其設計特點。

建筑與現有的植物相互交織,一系列形體片段沿著安扎克大道的正面展開,形成了獨特的開放和歡迎姿態。這些形態構建了一種城市過渡或共生的融合,從南側與街道平行的建筑群延續到北側蔥郁的校園景觀。Spooner教授主導了這一設計工作,在對校園大道的設計時采取了謹慎的處理方案,旨在增強這一重要景觀的特色——這是大學身份的重要組成部分。通過創建一個連續的高架平臺,配以朝北的階梯式座位,建筑實現了與校園大道的過渡,并在視覺上延伸了地平面,將其融入建筑內部。

在建筑上方,一座具有戲劇性輪廓的屋頂似乎漂浮在樹冠之上,其水平基準線與校園大道旁榕樹和木棉樹的成熟高度相吻合。南側,一系列具象化的矩形體塊映射了內部實驗室模塊的結構,并向后退讓以延展Day大道的街景至場地內。東側的實驗室模塊則進行了旋轉,以呼應Village Green的朝向。

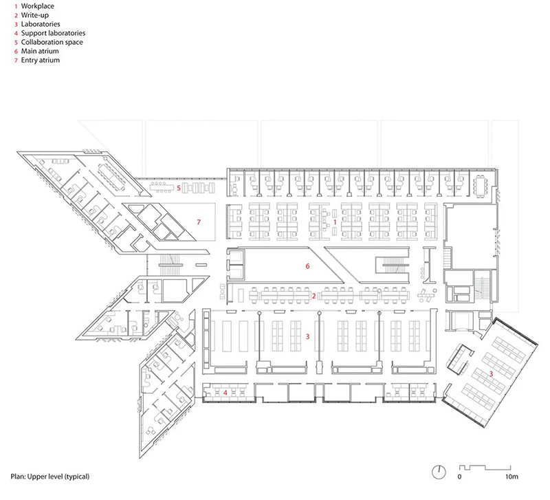
室內設計和空間規劃的核心原則為:互動性、透明性和靈活性。建筑師通過寬敞的通道、社交中心、會議室、超大樓梯、橋梁及互通的實驗室,促進了使用者之間的互動。建筑的功能通過立面和室內設計中不同程度的透明性實現開放或封閉。實驗室空間被設計成靈活的模塊,可以根據需要分離、連接或組合,滿足未來靈活多變的空間需求,建筑師還采用了跨學科、協作和綜合的可持續性方法,從最初的競賽設計方案一直延續到后期文件編制、施工及運營階段。該建筑在設計初期就將可持續性置于核心位置,以支持居住者開展世界領先的研究,這一成就得到了澳大利亞綠色建筑委員會的認可,并授予6星級綠色建筑認證(教育類 v1)。

我們的設計理念在功能性與靈活性之間尋找平衡,旨在為教學、科研和工作場所創造最佳實踐的環境,同時契合大學對這一重要門戶位置的戰略愿景。
寬敞的中庭、交疊的空間以及對景觀和校園遠景的開放視野,最大限度地提升了人員流動性和可見性。通過建筑形式與景觀的豐富交織,空間與光線得到了精妙的調和,實現了建筑與景觀的和諧融合。


文章轉自:專筑